Dúplex en venda a Barcelona (Gràcia)

DÚPLEX D'OBRA NOVA AMB TERRASSA I PISCINA (ref. 17261)
94,02 m2   |  2 Habitacions  |  2 Banys  |
760.000 €
Mapa
  Ficha


Descripció

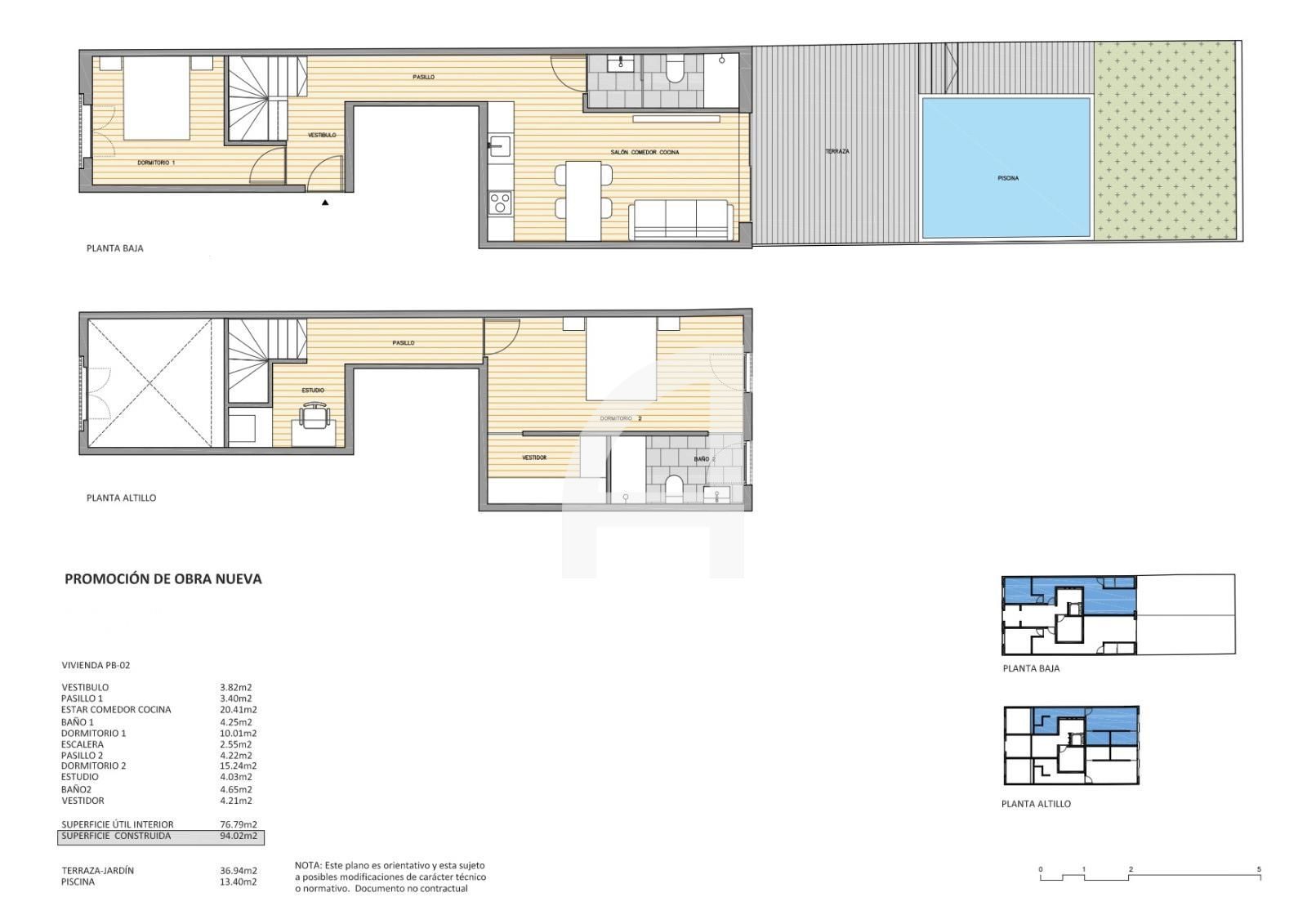
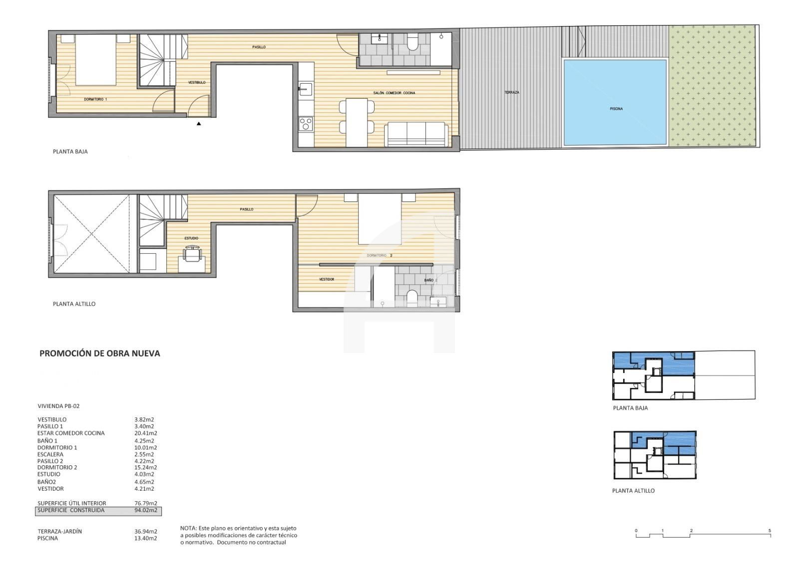
Ubicació estratègica a Barcelona, en la cobejada zona de Gràcia, t'ofereix un dúplex en venda que s'integra a un edifici residencial compost per 6 habitatges. Aquest immoble, en planta baixa, es presenta amb una distribució pensada per a la vida contemporània i la comoditat diària, amb estades àmplies que maximitzen cada metre quadrat. Disposes d'una terrassa de 36,94 m² i una piscina privada que afegeix un valor diferencial a les visites. L'habitatge es lliura amb calefacció per conductes i aire condicionat, aconseguint un ambient agradable en totes les estacions.

A l'interior destaquen 76,99 m² útils distribuïts en dos dormitoris i dos banys complets, un d'ells en suite amb vestidor en la planta entresolat. La combinació d'habitacions ben dimensionades facilita diferents usos: zona de descans, despatx o zona d'oci familiar. La planta alta, dedicada al dormitori principal, ofereix una sensació de privacitat i confort gràcies al vestidor integrat. El disseny dormitori-bany s'acompanya d'acabats de qualitat i solucions pràctiques per al dia a dia.

La cuina americana està moblada i equipada, llista per a entrar a viure, amb acabats moderns que faciliten la convivència diària. Els armaris de paret aporten un emmagatzematge intel·ligent sense restar protagonisme a les estades, mantenint l'espai ordenat i funcional.

L'habitatge inclou serveis bàsics i d'alt valor afegit, com a aigua i llum, amb subministrament preparat per a un ús immediat. La piscina privada a la terrassa amplia les possibilitats d'oci a l'aire lliure, ideal per a reunions, relax o gaudir dels moments a l'aire lliure sense abandonar la casa. La terrassa també augmenta la lluminositat natural de les estades principals, creant un ambient agradable durant el dia.

Aquest dúplex forma part d'un edifici que, en el seu conjunt, ofereix un marc de vida còmode i funcional. La proposta se centra en habitatges d'estades ben dimensionades, amb terrasses generoses i elements que faciliten la vida diària, com el climatització i l'emmagatzematge integrat. Es valora especialment la proximitat a serveis, comerços i transport, factors que potencien l'experiència de viure en la zona de Gràcia.

L'immoble es presenta com una opció atractiva per als qui busquen una llar moderna amb espais exteriors privats i una distribució pensada per a usos diversos. El conjunt residencial manté un disseny contemporani, amb atenció a la qualitat dels acabats i al confort.


Informació concorde a l'articulo 59 de la llei de l'habitatge 18/2007

Núm. Llicència d'obres: 06-2022LL25593

Data de caducitat de la llicència: obra finalitzada

Les dades de superfície construïda i útil consten en les fitxes i/o les imatges

Característiques
Preu Venda 760.000 €
Construïts 94,02 m2
Dormitoris 2
Banys 2
Cuina moblada
Calefacció conductes
Estat Obra nova
Tipus de terra
Ascensor
Aire condicionat
Piscina privada
Qualificació Energètica (A) MOSTRA
Llum
Aigua
Ubicació
La direcció de l'immoble és aproximada.
Escales d'eficiència


Eficiència Emissions: 4,00
Eficiència Consum: 26,00
26
4

Contacta'ns

Si desitges més informació sobre aquesta propietat, si us plau, emplena el formulari.

 Sí, he llegit i / o accepto les Condicions d'ús y la Política de privacitat

Unim globalitat de serveis i atenció personalitzada a parts iguals. Ens agrada parlar clar, ser honestos i trencar els estereotips immobiliaris.