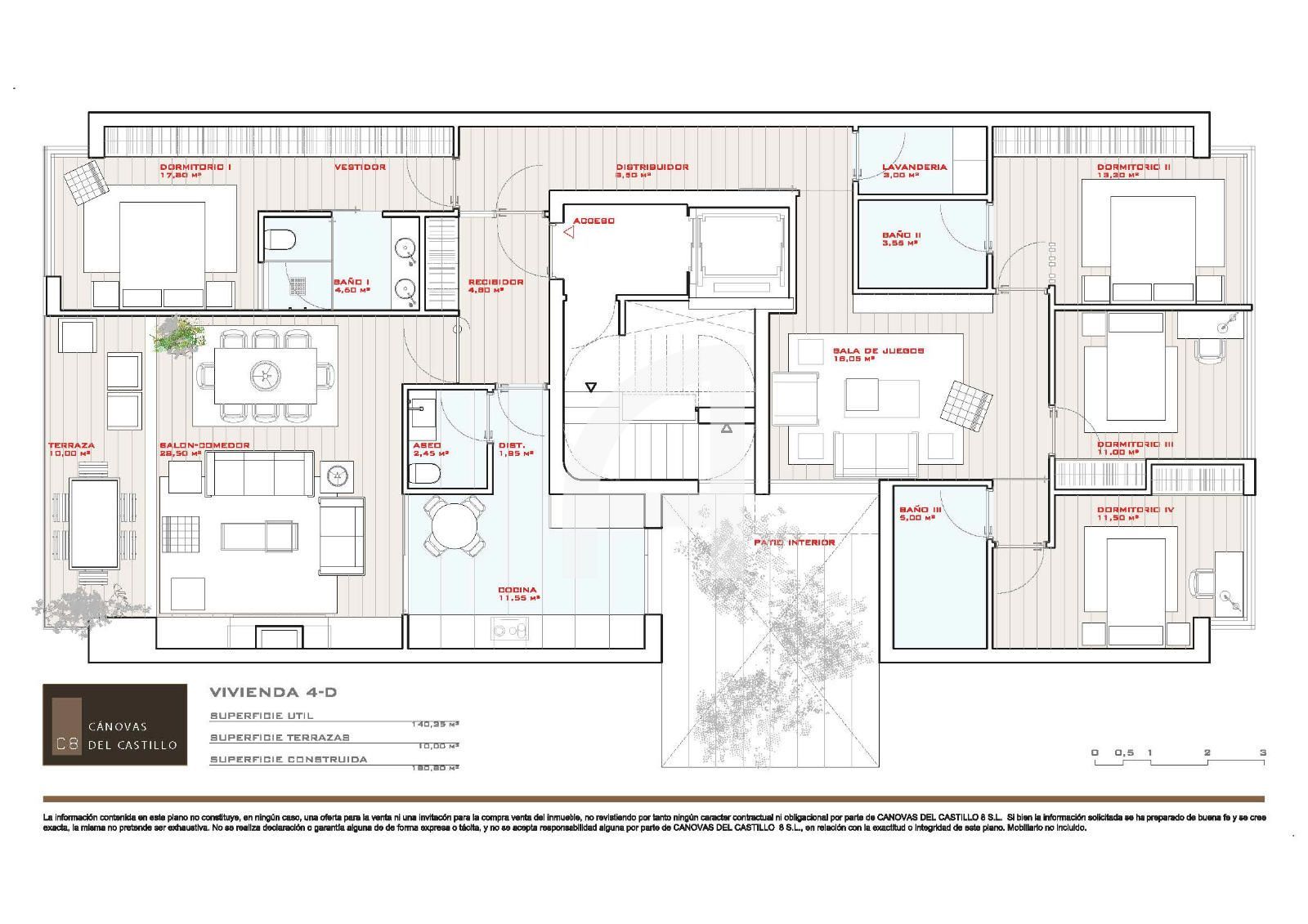
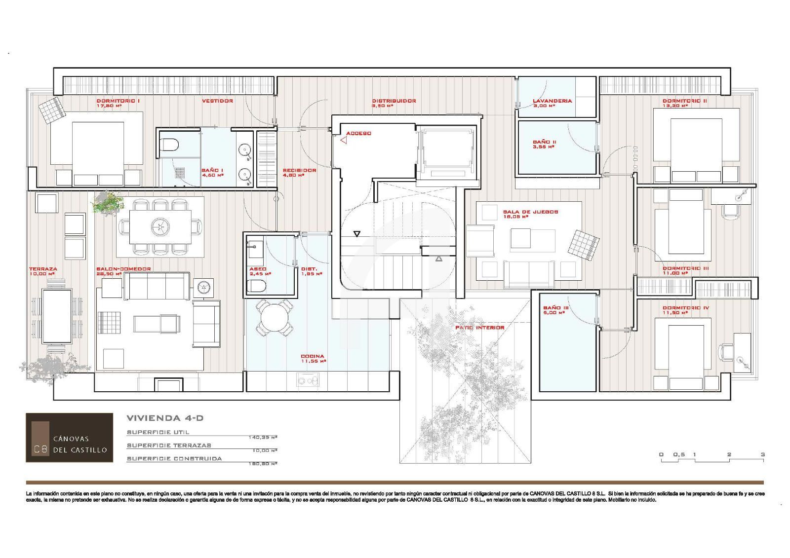
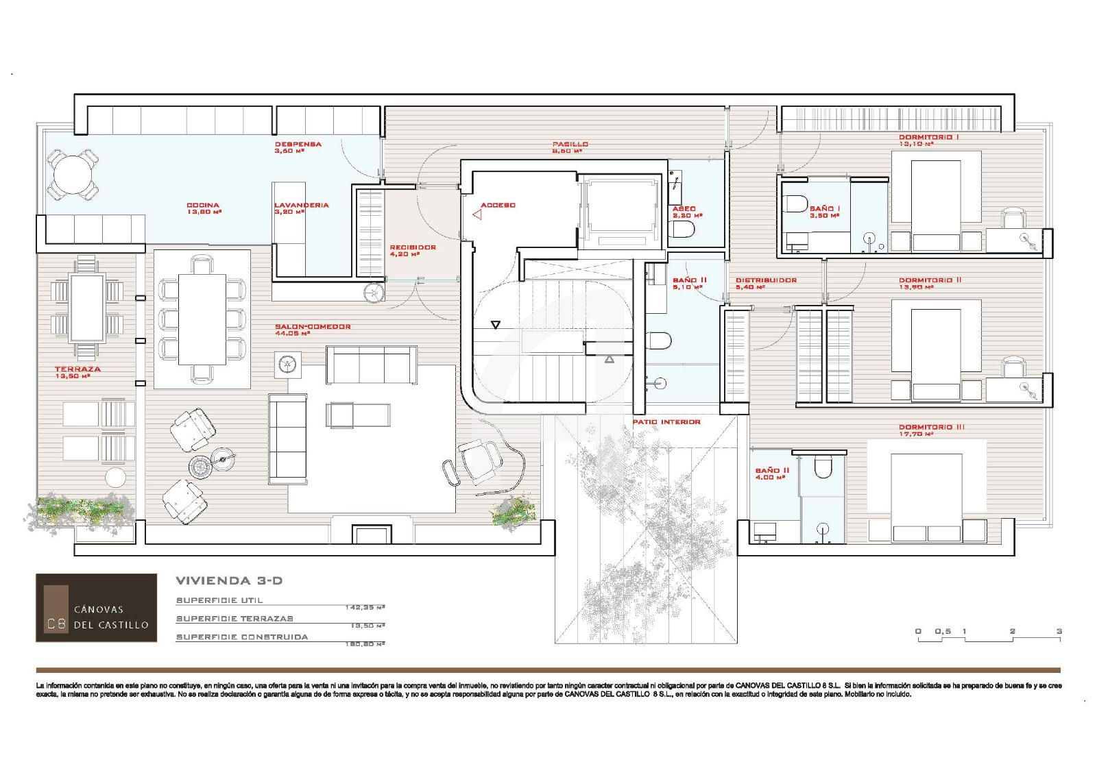
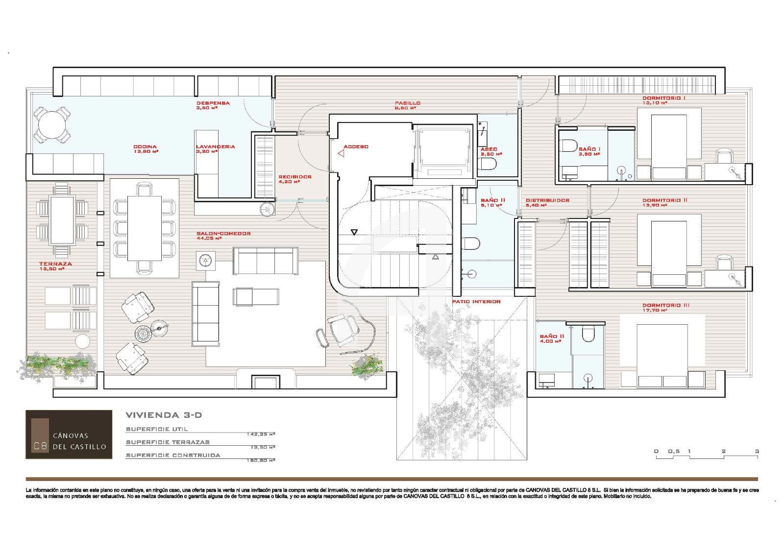
Pis en venda a Vigo, Pontevedra (Centro) (ref. 16641)
180,80 m2   |  4 Habitacions  |  4 Banys  |  1 Traster  |  1 Garatge  |  6 Alçada  |
820.000 €
Mapa
  Ficha


Descripció
Pis en venda a Vigo, amb 181 m2, 4 habitacions i 4 banys, Piscina, Garatge, Traster i Ascensor.
Característiques
Preu Venda 820.000 €
Construïts 180,80 m2
Dormitoris 4
Banys 4
Cuina moblada
Calefacció
Traster
Terrassa
Alçada/Planta 6
Estat Obra nova
Ascensor
Piscina comunitària
Garatge
Zones comunes
Qualificació Energètica (A) MOSTRA
Llum
Gas
Aigua

Arxius adjunts

  • Ubicació
    La direcció de l'immoble és aproximada.
    Escales d'eficiència


    -
    -

    El teu agent
    Sandrine Ferreira (Venda)
    Contacta'ns

    Si desitges més informació sobre aquesta propietat, si us plau, emplena el formulari.

     Sí, he llegit i / o accepto les Condicions d'ús y la Política de privacitat

    Unim globalitat de serveis i atenció personalitzada a parts iguals. Ens agrada parlar clar, ser honestos i trencar els estereotips immobiliaris.