Nave Industrial en alquiler en Girona (Mas Xirgu)

ALQUILER NAVE COMERCIAL - MAS XIRGU - GIRONA (ref. 17399)

14.000 €/mes
Mapa
  Ficha


Descripción

 MAS XIRGU - GIRONA

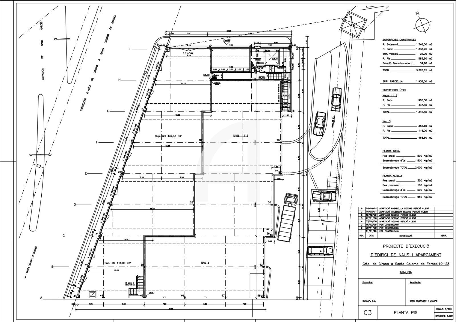
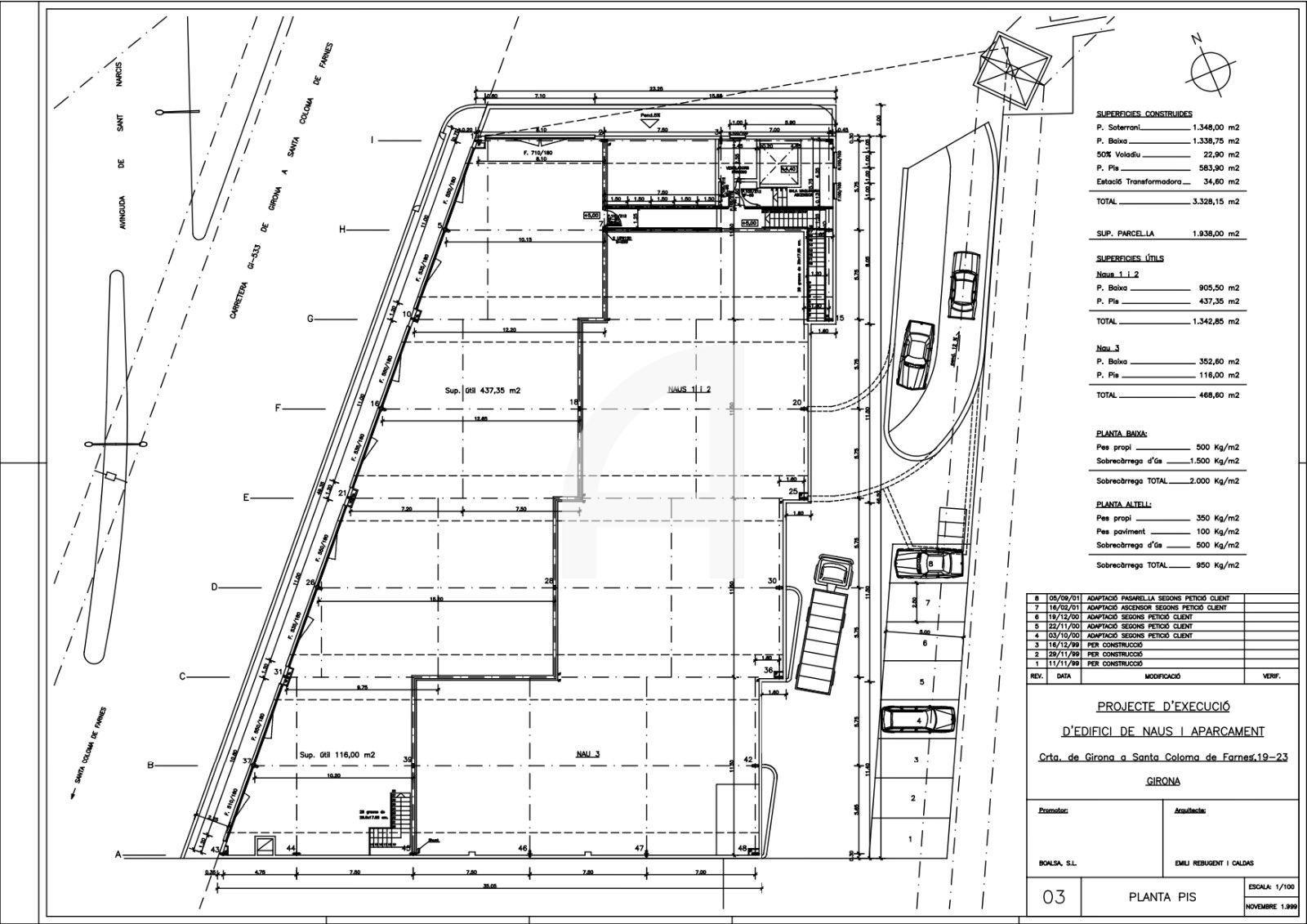
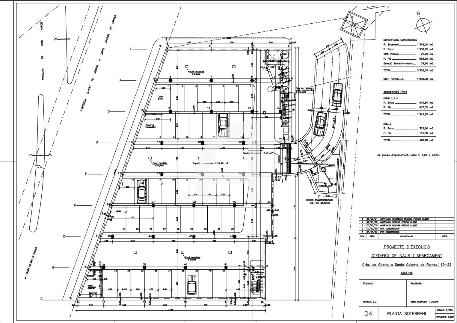
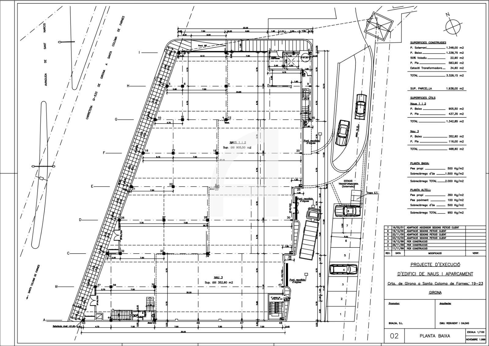
La propiedad está diseñada para facilitar la implementación de oficinas, showroom o áreas de producción. La parcela con una superficie total de 1.941,80m².

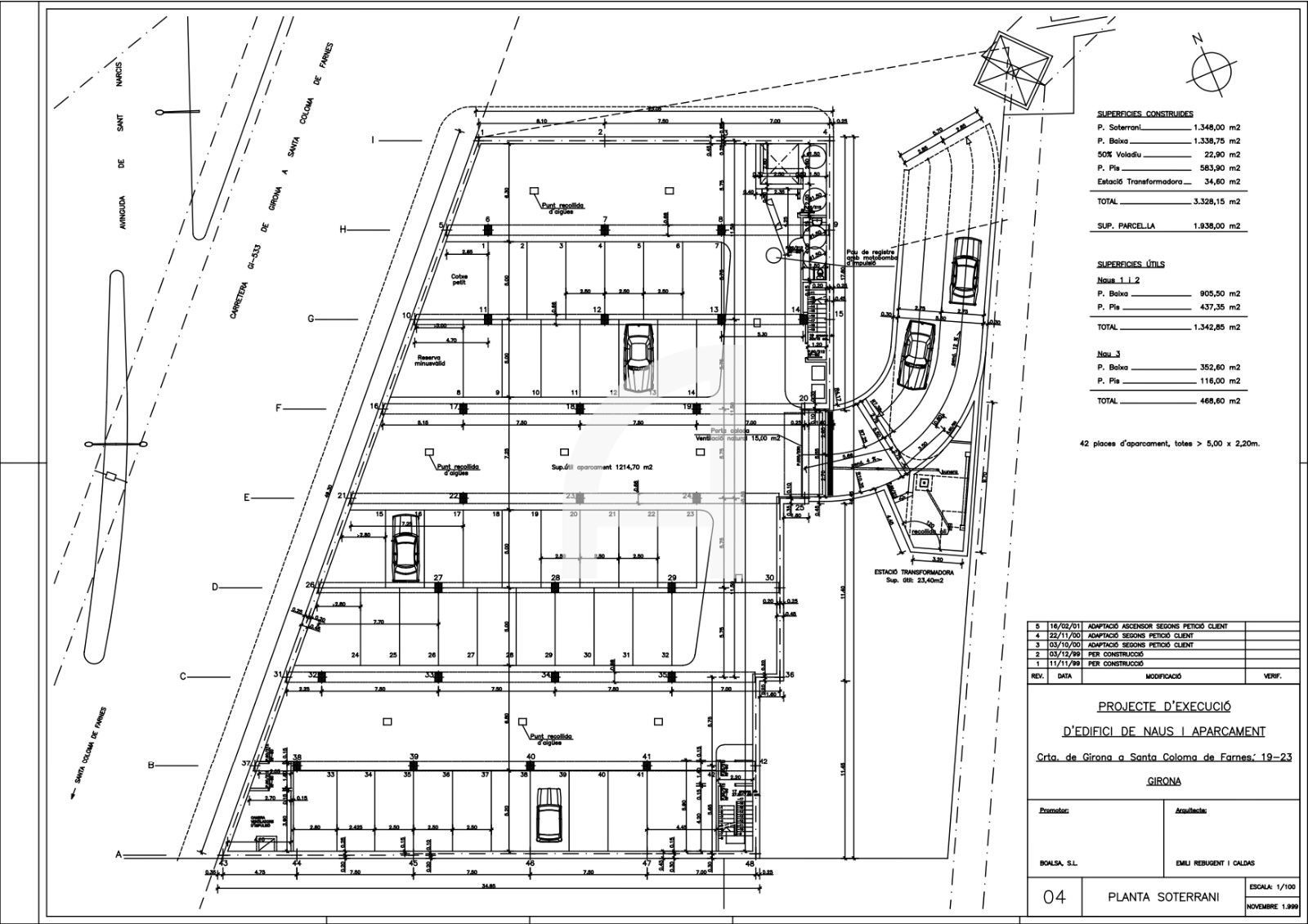
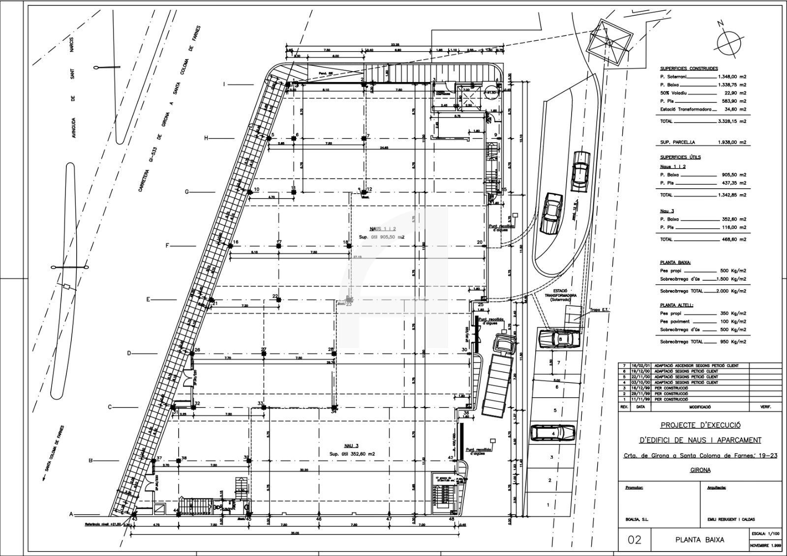
La superficie total construida es de 3.293,55m². El edificio consta de planta sótano, planta baja y primer piso. Dispone de un aparcamiento público para vehículos de cuarenta plazas en planta sótano y de un patio posterior para carga, descarga y estacionamiento de vehículos al servicio del establecimiento.

La planta sótano con una superficie construida de 1.348,00m², útil 1.214,70m². Planta sótano con aparcamiento para 40 plazas cuenta con una estación transformadora de Fecsa Endesa.

La planta baja cuenta con una superficie construida de 1338,65m², útil 1.258,10m².

Primera planta con una superficie construida de 583,90m², útil 553, 35m².

La ubicación en Girona ofrece conectividad y facilidad de llegada desde las principales arterias de la ciudad, con servicios cercanos y entorno urbano consolidado.

Características
Precio Alquiler 14.000 €/mes
Parcela 1.941,80 m2
Parkings 40
Calificación Energética En trámite
Ubicación
La dirección del inmueble es aproximada.
Escalas de eficiencia



Tu agente
Maria Busquets (Alquiler)
Contáctanos

Si deseas más información sobre esta propiedad, por favor, rellena el formulario.

 Sí, he leído y/o acepto las Condiciones de uso y la Política de privacidad

Unimos globalidad de servicios y atención personalizada a partes iguales.Nos gusta hablar claro, ser honestos y romper los estereotipos inmobiliarios.