Casa en venta en Terrassa, Barcelona (Centre )

CASA CON AMPLIO PATIO EN EL CENTRO (ref. 16777)
130 m2   |
275.000 €
Mapa
  Ficha


Descripción

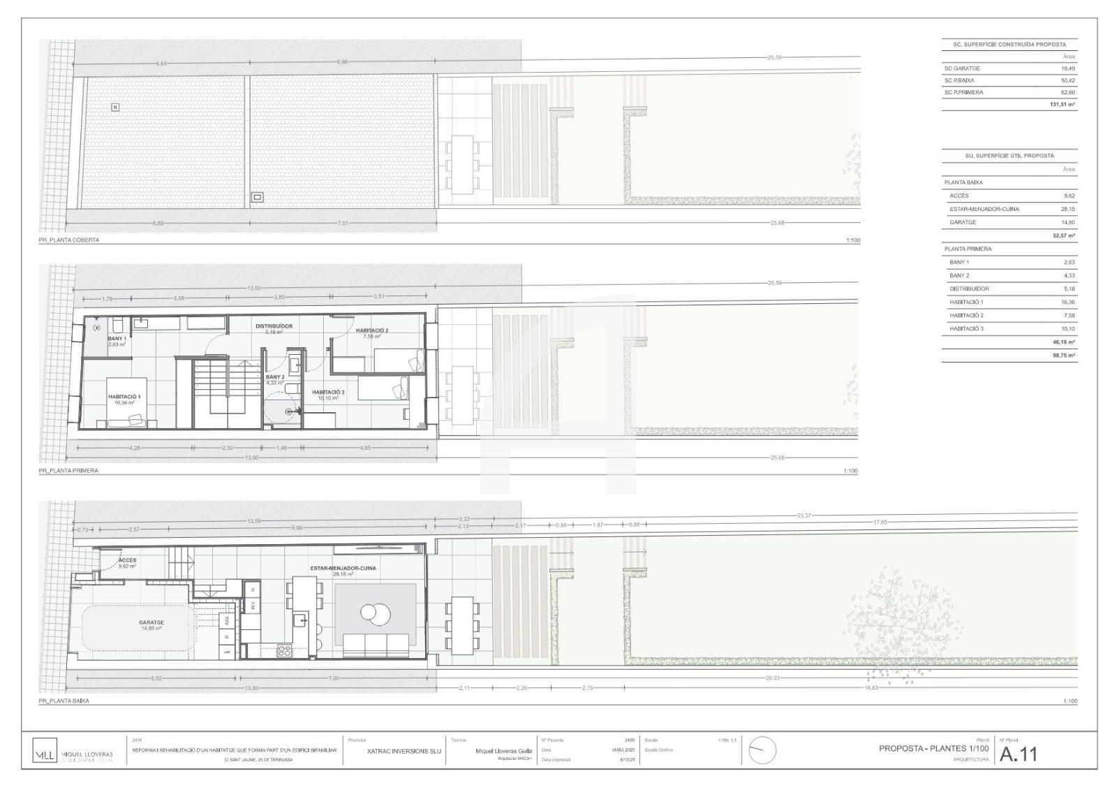
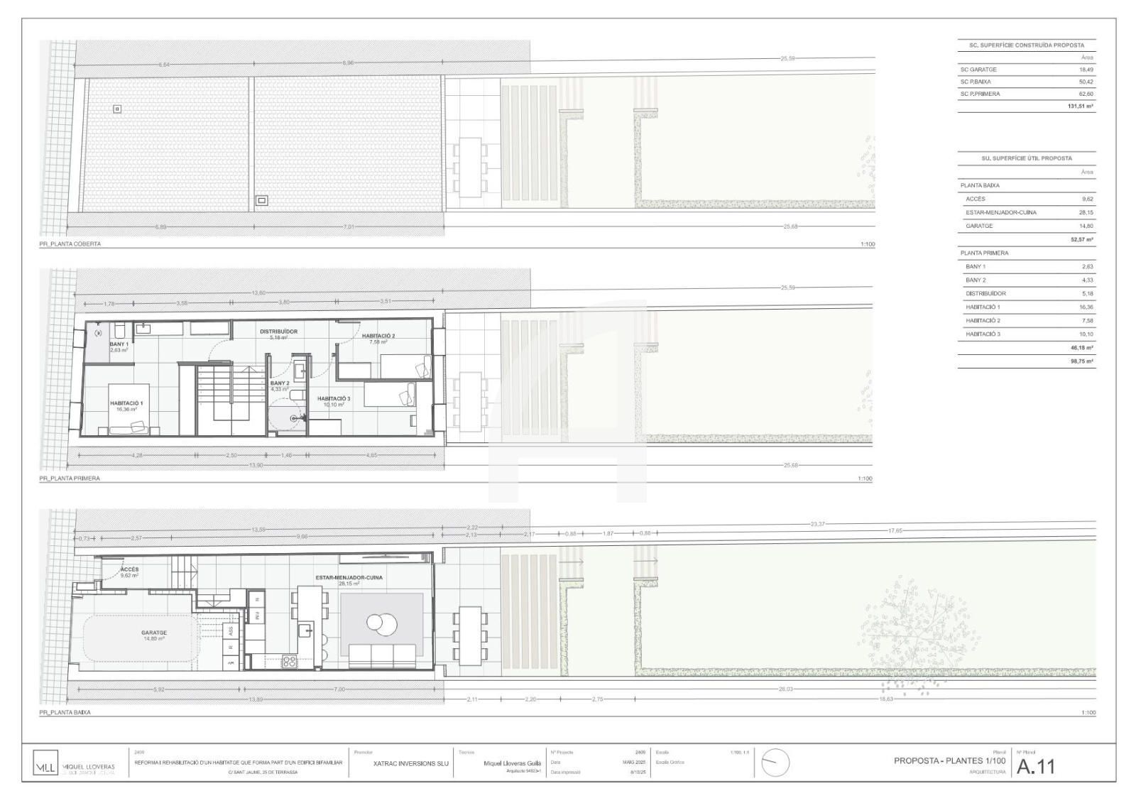
Casa en venta situada en Terrassa, en la zona de Centre, esta vivienda ofrece una oportunidad de rehabilitación, con estructura existente de fachada a calle-posterior y tejado  y un potencial claro para adaptar el espacio a tus necesidades.

La distribución del proyecto sería una planta B+1, con un garaje de 18,50 m² construidos que aporta una solución de estacionamiento, un valor añadido en una zona con demanda y un patio amplio de 127 m² ideal para disfrutar del aire libre y con espacio para posibilidad de construir una piscina. El inmueble se ubica en una calle tranquila y con paso exclusivo de vecinos y sin ruidos.

Fachada de 4,95 m² y fondo de unos 40 m² aproximadamente, pensada para optimizar la orientación y la luz natural. Se puede construir tres habitaciones, dos de ellas dobles, lo que brinda una distribución funcional para familias que buscan espacios versátiles. La reforma ofrece la posibilidad de ampliar hasta aproximadamente 132 m², con opciones de redefinir la planta y crear zonas de día y descanso con mayor confort.

La distribución actual facilita la implantación de ambientes abiertos en planta baja y la creación de zona de noche en planta superior ofreciendo mayor privacidad.

Esta espectacular vivienda se encuentra en pleno centro de Terrassa, en una calle muy tranquila cerca de la Mútua de Terrassa y el Passeig del Comte d’Ègara. Además, estarás a tan solo dos minutos de la estación FGC Vallparadís-Terrassa y del parque Vallparadís. Así que podrás disfrutar de la comodidad de estar cerca de todos los servicios y lugares de interés, sin renunciar a la tranquilidad que necesitas en tu hogar. Cerca del Supermercado BonPreu y a pocos minutos de la Placa Vella.

El precio incluye la licencia de obras, el proyecto básico y el proyecto ejecutivo ya pagados.

Características
Precio Venta 275.000 €
Construidos 130 m2
Parcela 195 m2
Calificación Energética En trámite
Ubicación
La dirección del inmueble es aproximada.
Escalas de eficiencia



Contáctanos

Si deseas más información sobre esta propiedad, por favor, rellena el formulario.

 Sí, he leído y/o acepto las Condiciones de uso y la Política de privacidad

Unimos globalidad de servicios y atención personalizada a partes iguales.Nos gusta hablar claro, ser honestos y romper los estereotipos inmobiliarios.