Pis en venda a Barcelona (Sarrià-Sant Gervasi)

EXCEPCIONAL I AMPLI IMMOBLE EN SARRIÀ-SANT GERVASI (ref. 16051)
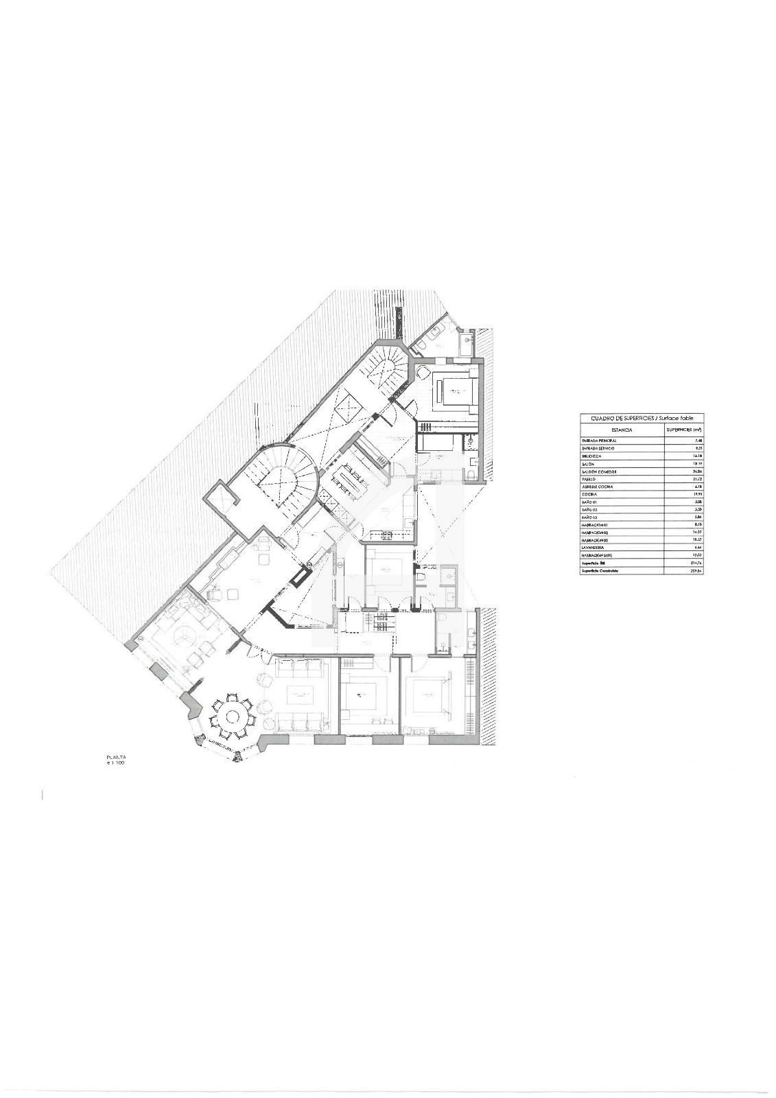
259,84 m2   |  4 Habitacions  |  3 Banys  |  4 Alçada  |
1.590.000 €
Mapa
  Ficha


Descripció

Presentem un excepcional immoble en venda en un dels barris més cobejats de Barcelona: Sarrià-Sant Gervasi. Aquest ampli pis de 259,84  m² construïts destaca per la seva distribució eficient i la seva ubicació privilegiada, ideal tant per a famílies com per a aquells que busquen un espai confortable en una de les zones més tranquil·les i elegants de la ciutat.

El pis compta amb 4 habitacions, perfectes per a adaptar-se a les teves necessitats, ja sigui com a dormitoris, despatxos o àrees de joc. La lluminositat natural es fa present en cada racó gràcies als seus grans finestrals. A més, disposa de 3 banys equipats, la qual cosa garanteix total comoditat i intimitat per a tots els residents.

Entre les característiques més destacades, s'inclouen: calefacció per conductes que asseguren un ambient càlid durant els mesos més freds i aire condicionat per a combatre la calor de l'estiu. L'immoble també està equipat amb armaris de paret en diverses habitacions, oferint un ampli espai d'emmagatzematge. La xemeneia afegeix un toc acollidor, perfecta per a moments de relaxació.

La cuina, adjunta al safareig, està moblada amb un disseny pràctic i contemporani, ideal per a gaudir de la gastronomia en companyia. La propietat es troba en excel·lent estat, llista per a ser habitada, la qual cosa suposa un gran atractiu per als qui busquen mudar-se sense haver de realitzar obres.

L'edifici compta amb ascensor i servei de conserge, la qual cosa aporta un plus en seguretat i comoditat en el teu dia a dia. L'atenció al detall en els espais comuns reflecteix la qualitat de l'immoble íntegrament.

Localitzat en Sarrià-Sant Gervasi, aquest pis es troba immers en un entorn amb múltiples serveis: cafeteries, restaurants, escoles i boutiques de disseny. La proximitat amb parcs i zones verdes afegeix un valor innegable a la qualitat de vida en aquesta àrea. A més, l'excel·lent comunicació mitjançant transport públic, així com la seva proximitat a importants vies d'accés, facilita el desplaçament per tota Barcelona.

La zona destaca pel seu ambient tranquil i familiar, convertint-se en un refugi perfecte dins de la bulliciosa ciutat. Ideal per als qui busquen un equilibri entre la vida urbana i la tranquil·litat residencial.

Característiques
Preu Venda 1.590.000 €
Construïts 259,84 m2
Dormitoris 4
Banys 3
Moblat
Calefacció conductes
Alçada/Planta 4
Estat Reformat
Tipus de terra
Ascensor
Aire condicionat
Qualificació Energètica (E) MOSTRA
Llum
Gas
Aigua
Conserge
Ubicació
La direcció de l'immoble és aproximada.
Escales d'eficiència


Eficiència Emissions: 107,00
Eficiència Consum: 22,00
22
107

Contacta'ns

Si desitges més informació sobre aquesta propietat, si us plau, emplena el formulari.

 Sí, he llegit i / o accepto les Condicions d'ús y la Política de privacitat

Unim globalitat de serveis i atenció personalitzada a parts iguals. Ens agrada parlar clar, ser honestos i trencar els estereotips immobiliaris.